Технические параметры
Длина:
4200 мм
Ширина:
2500 мм
Высота:
2650 мм
Возраст:
от 3 до 6 лет
Высота падения:
700 мм
Площадь зоны безопасности:
47 м2
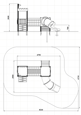
ДИК 2.085-ДЕРЕВО Детский игровой комплекс Н=700 мм (Палитра 1 (-15))
Детский игровой комплекс состоит из двух башен соединенных радиусным мостом с металлическими перилами. На первой башне установлена крыша,фанерное ограждение, ограждение из бруса с перекладинами и лестница. На второй башне установлена горка, фанерное ограждение и ограждение из бруса с перекладинами.
Комплектация изделия
| Наименование комплектующих | шт. | Входящие материалы |
|---|---|---|
| Горка | 1шт. | Высота 700 мм. Горка состоит из сегментов, изготовленных из полиэтилена низкого давления, со стенками толщиной 8 мм. |
| Крыша | 1шт. | Выполнена из фанеры марки ФСФ толщиной 12 мм. |
| Лестница | 1шт. | Высотой 700 мм, Выполнена из фанеры ламинированной противоскользящаей, толщиной 18 мм, бруса сечением 40х90 мм. |
| Ограждение | 2шт. | Выполнена из фанеры марки ФСФ толщиной 18 мм. |
| Счеты | 1шт. | Выполнены из оцинкованного металла, деревянного бруса диамторм 125 мм, фанеры марки ФСФ толщиной 21 мм и ламинированной противоскользящей влагостойкой фанеры толщиной 18 мм. |
| Мост канатный | 1шт. | Выполнен из металла окрашенного порошковой краской и полипропиленового каната. |
| Трап | 1шт. | Высотой 700 мм. Выполнен из ламинированной противоскользящей фанеры толщиной 18 мм и из металла окрашенного порошковой краской. |
| Площадка | 2шт. | Выполнена из ламинированной противоскользящей влагостойкой фанерф толщиной 18 мм. |
| Столб | 8шт. | Выполнен из клееного деревянного бруса, сечением 100х100 мм. |


