Технические параметры
Длина:
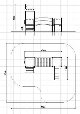
4200 мм
Ширина:
2540 мм
Высота:
3000 мм
Возраст:
от 3 до 6 лет
Высота падения:
700 мм
Площадь зоны безопасности:
47 м2
ДИК 2.095-ДПК Детский игровой комплекс Н=700 мм (Палитра 5 (-11,32))
Детский игровой комплекс состоит из двух башен соединенных радиусным мостом с металлическими перилами. На первой башне установлена крыша, декоративные флажки, два фанерных ограждения и лестница. На второй башне установлена горка и два ограждения фанерных.
Комплектация изделия
| Наименование комплектующих | шт. | Входящие материалы |
|---|---|---|
| Горка | 1шт. | Высота 700 мм. Выполнена из фанеры марки ФСФ толщиной 21 мм, металлического каркаса и ската из нержавеющей стали. |
| Крыша | 1шт. | Выполнена из фанеры марки ФСФ толщиной 12 мм. |
| Лестница | 1шт. | Высотой 700 мм, Выполнена из фанеры ламинированной противоскользящаей, толщиной 18 мм, бруса сечением 40х90 мм. |
| Ограждение | 4шт. | Выполнена из фанеры марки ФСФ толщиной 18 мм. |
| Ограждение моста | 4шт. | Выполнено из металла окрашенного порошковой краской. |
| Мост радиусный | 1шт. | Выполнен из металла окрашенного порошковой краской и деревянного бруса сечением 40х135 мм. |
| Площадка | 2шт. | Выполнена из ламинированной противоскользящей влагостойкой фанерф толщиной 18 мм. |
| Столб | 8шт. | Выполнен из древесно-полимерного композита (ДПК) сечением 100х100 мм. |






