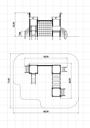
Технические параметры
Длина:
5630 мм
Ширина:
4635 мм
Высота:
3130 мм
Возраст:
от 3 до 6 лет
Высота падения:
700 мм
Площадь зоны безопасности:
61 м2
ДИК 3.12-ДЕРЕВО Детский игровой комплекс Н=700 мм (Палитра 1 (-15))
Детский игровой комплекс состоит из трёх башен. На первой башне установлена лестница, декоративные фанерные флажки, шведская стенка и фанерное ограждение с художественной оформленной поверхностью в морской тематике. На второй башне установлена лиана и фанерное ограждение с художественной оформленной поверхностью в морской тематике. На третьей башне установлена горка, лестница, декоративные фанерные флажки, шведская стенка и фанерное ограждение с художественной оформленной поверхностью в морской тематике. Третья и вторая башни соединены сеткой полипропиленовой, вторая и первая соединены подвесным мостом.
Комплектация изделия
| Наименование комплектующих | шт. | Входящие материалы |
|---|---|---|
| Горка | 1шт. | Высота 700 мм. Выполнена из фанеры марки ФСФ толщиной 21 мм, металлического каркаса и ската из нержавеющей стали. |
| Крыша | 3шт. | Выполнена из фанеры марки ФСФ толщиной 12 мм. |
| Лестница | 2шт. | Высотой 700 мм, Выполнена из фанеры ламинированной противоскользящаей, толщиной 18 мм, бруса сечением 40х90 мм. |
| Ограждение | 3шт. | Выполнена из фанеры марки ФСФ толщиной 18 мм. |
| Мост подвесной с страховочным мостом | 1шт. | Выполнен из металла окрашенного порошковой краской, ламинированной противоскользящей влагостойкой фанеры толщиной 18 мм и полипропиле-нового каната. . |
| Сетка | 1шт. | Выполнена из полипропиленового каната. |
| Перекладина | 10шт. | Выполнена из металла окрашенного порошковой краской. |
| Лиана | 1шт. | Выполнена из металла окрашенного порошковой краской. |
| Площадка | 3шт. | Выполнена из ламинированной противоскользящей влагостойкой фанеры толщиной 18 мм. |
| Столб | 13шт. | Выполнен из клееного деревянного бруса, сечением 100х100 мм. |






