Технические параметры
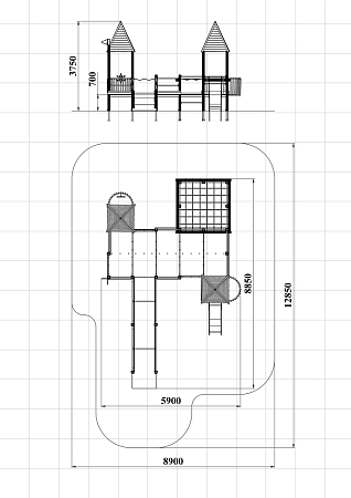
Детский игровой комплекс предназначен для детей с ограниченными физическими возможностями, он состоит из пяти сдвоенных открытых башен и двух башен с пирамидальными крышами. На одной из башен установлена горка, балкон, металлическое ограждение из перекладин. На другой башне установлено фанерное ограждение, балкон с фанерным рулём и комплект детских счет с разноцветными пластиковыми бубликами. Обе башни расположены диагонально друг напротив друга. Между ними расположены пять двойных площадок с ограждениями по периметру из металлических перекладин и фанерных ограждений. Вход на площадку осуществлен в виде двойного наклонного трапа с металлическими перилами. Сбоку от площадки расположен спортивный комплекс, состоящий из столбов, шведских стенок и горизонтальной полипропиленовой сетки. Ограждением комплекса также служит брус расположенный по периметру комплекса над ламинированными полами. В углу комплекса расположен столб с декоративными фанерными флажками.
Комплектация изделия
| Наименование комплектующих | шт. | Входящие материалы |
|---|---|---|
| Горка | 1шт. | Высота 700 мм. Выполнена из фанеры марки ФСФ толщиной 21 мм, металлического каркаса и ската из нержавеющей стали. |
| Крыша | 2шт. | Выполнена из фанеры марки ФСФ толщиной 12 мм и бруса сечением 40х90 мм. |
| Трап наклонный 1900 мм с углом 98 градусов | 2шт. | Выполнен из фанеры ламинированной противоскользящаей, толщиной 18 мм и металла окрашенного порошковой краской. |
| Ограждение металлическое трапа с углом 98 градусов | 8шт. | Выполнена из металла окрашенного порошковой краской. |
| Балкон | 2шт. | Выполнен из металла окрашенного порошковой краской и ламинированной противоскользящей влагостойкой фанеры толщиной 18 мм.. |
| Ограждение 1100х600 мм | 4шт. | Выполнено из фанеры марки ФСФ толщиной 18 мм. |
| Счеты | 1шт. | Выполнены из оцинкованного металла, пластика и ламинированной противоскользящей влагостойкой фанеры толщиной 18 мм. |
| Сетка полипропиленовая | 1шт. | Выполнена из полипропиленового каната. |
| Перекладина | 33шт. | Выполнена из металла окрашенного порошковой краской. |
| Площадка | 7шт. | Выполнена из ламинированной противоскользящей влагостойкой фанеры толщиной 18 мм. |
| Столб | 35шт. | Выполнен из древесно-полимерного композита (ДПК) сечением 100х100 мм. |






