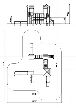
Технические параметры
Детский игровой комплекс состоит из четырёх башен. На первой башне установлены крыша наклонная, ограждение из бруса, шест, перекладина и горка. На второй башне установлены крыша наклонная, ограждение из бруса, перекладина и лестница. На третьей башне установлены крыша четырехскатная, горка, перекладина и четыре ограждения из бруса. На четвёртой башне установлены три ограждения из бруса, пять перекладин, декоративные флажки и трап из бруса с альпинистскими камнями Первая и вторая башни соединены полипропиленовым переходом, вторая и третья башни соединены мостом подвесным из деревянного бруса и полипропиленового каната, третья и четвёртая башни соединены сеткой полипропиленовой.
Комплектация изделия
| Наименование комплектующих | шт. | Входящие материалы |
|---|---|---|
| Горка | 2шт. | Высота 1200 мм. Выполнена из фанеры марки ФСФ толщиной 21 мм, металлического каркаса и ската из нержавеющей стали.. |
| Крыша1 | 1шт. | Выполнена из деревянного бруса сечением 40х90 мм и 50х100 мм, фанеры марки ФСФ толщиной 15 мм и клееного деревянного бруса сечением 100х100 мм. |
| Крыша2 | 2шт. | Выполнена из деревянного бруса сечением 40х140 мм и фанеры марки ФСФ толщиной 15 мм. |
| Лестница | 1шт. | Высотой 1200 мм, Выполнена из фанеры ламинированной противоскользящаей, толщиной 18 мм, бруса сечением 40х90 мм. |
| Ограждение из бруса | 9шт. | Выполнено из бруса сечением 40х90 мм и 30х120 мм. |
| Трап | 1шт. | Выполнен из бруса сечением 40х140 мм и металла окрашенного порошковой краской. |
| Перекладина | 9шт. | Выполнена из металла окрашенного порошковой краской. |
| Шест | 1шт. | Выполнен из металла окрашенного порошковой краской. |
| Сетка | 1шт. | Выполнена из полипропиленового каната. |
| Сетка-тоннель | 1шт. | Выполнена из полипропиленового каната. |
| Мост подвесной из бруса со страховочным мостом | 1шт. | Выполнена из фанеры ламинированной противоскользящей толщиной 18 мм, полипропиленового каната, деревянного бруса сечением 100х100 мм, 40х140 мм и 40х90 мм. |
| Площадка | 4шт. | Выполнена из ламинированной противоскользящей влагостойкой фанерф толщиной 18 мм. |
| Столб | 32шт. | Выполнен из клееного деревянного бруса, сечением 100х100 мм. |






