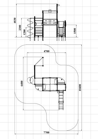
Технические параметры
Длина:
6400 мм
Ширина:
4700 мм
Высота:
4030 мм
Возраст:
от 7 до 13 лет
Высота падения:
2300 мм
Площадь зоны безопасности:
80 м2
ДИК 9.122-ДПК Детский игровой комплекс Н=1200 мм (Палитра 5 (-11,32))
Детский игровой комплекс состоит из трех разновысоких башен. На первой башне установлена лестница, горка, фанерное ограждение с декоративными накладками и ручки вспомогательные. На второй сдвоенной башне установлены декоративные фанерные флажки, фанерные ограждения с декоративными накладками и крыша. На третьей башне установлены фанерное ограждение с декоративными накладками, шест спираль, лестница и ручки вспомогательные. К третьей башне присоединен гимнастический комплекс, состоящий из сетки полипропиленовой и двух шведских стенок.
Комплектация изделия
| Наименование комплектующих | шт. | Входящие материалы |
|---|---|---|
| Горка | 1шт. | Высота 1200 мм. Выполнена из фанеры марки ФСФ толщиной 21 мм, металлического каркаса и ската из нержавеющей стали. |
| Лестница | 2шт. | Выполнена из металла окрашенного порошковой краской и фанеры марки ФСФ толщиной 21 мм |
| Крыша | 1шт. | Выполнена из фанеры марки ФСФ толщиной 21 мм. |
| Ограждение Кремль 1800х635 | 2шт. | Выполнено из фанеры марки ФСФ толщиной 21 мм. |
| Ограждение Кремль 850х635 мм | 3шт. | Выполнена из фанеры марки ФСФ толщиной 18 мм. |
| Перекладина | 21шт. | Выполнена из металла окрашенного порошковой краской. |
| Ручка вспомогательная | 6шт. | Выполнена из металла, покрытого слоем резины. |
| Шест-спираль | 1шт. | Выполнена из металла окрашенного порошковой краской. |
| Сидение 250х700 мм | 2шт. | Выполнена из фанеры марки ФСФ толщиной 21 мм. |
| Сетка | 1шт. | Выполнена из полипропиленового армированного каната. |
| Площадка | 6шт. | Выполнена из ламинированной противоскользящей влагостойкой фанеры толщиной 18 мм. |
| Столб | 16шт. | Выполнен из древесно-полимерного композита (ДПК) сечением 100х100 мм. |






