Технические параметры
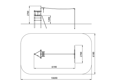
Комплекс состоит из башни с треугольной площадкой, лестницей и перекладинами. Отдельно от башни расположена Л-образная металлическая опора, соединенная с башней металлической трубой. На трубе установлен роликовый механизм, позволяющий передвигаться вдоль трубы по всей ее длине. Все металлические элементы выполнены из стали с оцинкованным покрытием. Оцинковка металла производится методом электрохимической гальванизации. Кканаты изготовлены из многожильного армированного износостойкого каната. Площадка выполнена из HPL пластика.
Все используемые материалы закупаются у лучших европейских производителей, что гарантирует высокие стандарты качества.


