Технические параметры
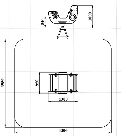
Длина:
1300 мм
Ширина:
950 мм
Высота:
1000 мм
Возраст:
от 3 до 6 лет
Высота падения:
540 мм
Площадь зоны безопасности:
17 м2
ДИО 4.01 Качалка на пружине (Палитра 5 (-11,32))
Качалка на пружине в форме кораблика изготовлена из фанерных элементов с художественным оформлением и металлических элементов с пружиной.
Файлы для загрузки
- ДИО 4.01-11,32 (без художки).3ds
- ДИО 4.01-15 (без художки).3ds
- ДИО 4.01-16 (без художки).3ds
- ДИО 4.01-с22.19.20 (без художки).3ds
- ДИО 4.01-с22.34.20 (без художки).3ds
- ДИО 4.01-с26.8.21 (без художки).3ds
- ДИО 4.01-с26.8.32 (без художки).3ds
- ДИО 4.01-с26.11.13 (без художки).3ds
- ДИО 4.01-8.22.35 (без художки).3ds
- ДИО 4.01-11,32.7z
- ДИО 4.01-15.7z
- ДИО 4.01-16.7z
- ДИО 4.01-с22.19.20.7z
- ДИО 4.01-с22.34.20.7z
- ДИО 4.01-с26.8.21.7z
- ДИО 4.01-с26.8.32.7z
- ДИО 4.01-с26.11.13.7z
- ДИО 4.01-8.22.35.7z



