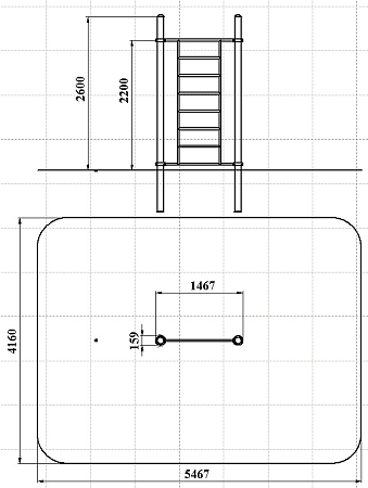
Технические параметры
Длина:
1467 мм
Ширина:
159 мм
Высота:
2600 мм
Возраст:
от 14 до 18 лет
Высота падения:
2200 мм
Площадь зоны безопасности:
20 м2
СО 7.06 Шведская стенка (Палитра 4 (с22/22,34))
Воркаут состоит из двух несущих столбов и шведской стенки с зажимными хомутами.
Комплектация изделия
| Наименование комплектующих | шт. | Входящие материалы |
|---|---|---|
| Столб | 2шт. | Выполнен из металла окрашенного порошковой краской, |
| Шведская стенка | 1шт. | Выполнена из металла окрашенного порошковой краской. |
| Зажимной элемент | 8шт.. | Выполнен из аллюминия окрашенного порошковой краской. |



