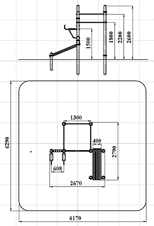
Технические параметры
Длина:
2670 мм
Ширина:
2790 мм
Высота:
2600 мм
Возраст:
от 14 до 18 лет
Высота падения:
2200 мм
Площадь зоны безопасности:
40 м2
СО 7.28 Базис Сити (Палитра 4 (с22/22,34))
Воркаут состоит из восьми несущих столбов, восьми перекладин, шведской стенки, наклонной скамьи из бруса и металлических брусьев со спинкой с зажимными хомутами.
Комплектация изделия
| Наименование комплектующих | шт. | Входящие материалы |
|---|---|---|
| Столб | 8шт. | Выполнен из металла окрашенного порошковой краской. |
| Перекладина | 4шт. | Выполнена из металла окрашенного порошковой краской. |
| Скамья для пресса | 1шт. | Выполнена из металла окрашенного порошковой краской и деревянного бруса сечением не менее 100х100 мм. |
| Стенка с брусьями | 1шт. | Выполнена из металла окрашенного порошковой краской, ламинированной фанеры толщиной не менее 18 мм и деревянного бруса сечением не менее 100х100 мм. |
| Шведская стенка | 1шт. | Выполнена из металла окрашенного порошковой краской. |
| Зажимной элемент | 48шт. | Выполнен из аллюминия окрашенного порошковой краской. |



