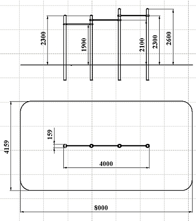
Технические параметры
Длина:
4000 мм
Ширина:
159 мм
Высота:
2600 мм
Возраст:
от 14 до 18 лет
Высота падения:
2300 мм
Площадь зоны безопасности:
30 м2
СО 7.32 Турник тройной высокий (Палитра 4 (с22/22,34))
Воркаут состоит из четырех несущих столбов и трёх перекладин с зажимными хомутами.
Комплектация изделия
| Наименование комплектующих | шт. | Входящие материалы |
|---|---|---|
| Столб | 4шт. | Выполнен из металла окрашенного порошковой краской. |
| Перекладина | 3шт. | Выполнена из металла окрашенного порошковой краской. |
| Зажимной элемент | 12шт. | Выполнен из аллюминия окрашенного порошковой краской. |



