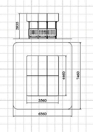
Технические параметры
Длина:
4460 мм
Ширина:
3560 мм
Высота:
2830 мм
Возраст:
от 3 до 18 лет
Высота падения:
250 мм
Площадь зоны безопасности:
49 м2
МФ 5.195-ДЕРЕВО Детская веранда (Палитра 1 (-15))






